12
$1,900 Rent
Listed 13 hours ago
63 E Cedar Street 4B IL
· 1
· 1
· 0
· 0
Key Facts
Key facts for 63 E Cedar Street 4B IL
Property Type
Apartment
Parking
0 parking
MLS #
12485735
Size
0 sqft
Basement
None
Listed on
-
Lot size
-
Tax
-
Days on Market
-
Year Built
1891
Maintenance Fee
-
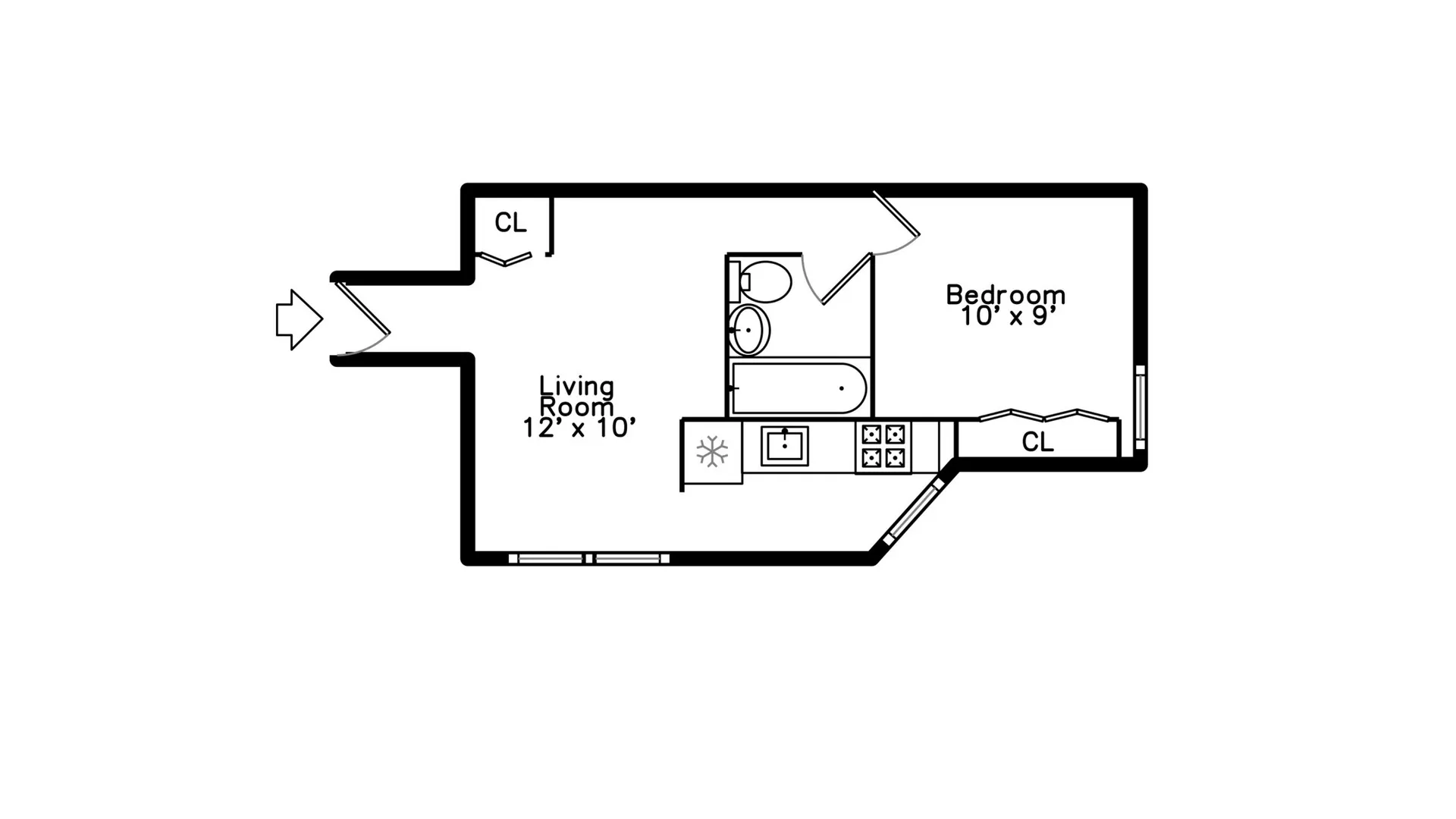
Description
Location truly is everything, and this top-floor condo in a well-maintained elevator building puts you in the heart of the Gold Coast. Just steps from Oak Street Beach, the lakefront path for running and biking, and surrounded by premier dining on Rush Street and world-class shopping along Michigan ...Avenue. Inside, you'll enjoy stunning greenhouse-style windows in the living room that flood the space with natural light, an updated kitchen with dishwasher, a refreshed bathroom, hardwood floors throughout, and soaring ceilings. Ample closet space plus additional storage in the building's lower level keep life organized. On-site laundry, bike storage, and the convenience of an elevator complete the package
Similar Properties (No results)
Listing courtesy of: Baird & Warner

Listings courtesy of MRED as distributed by MLS GRID.