43
$299,900 Sale
Listed 13 hours ago
12234 S Normal Avenue IL
· 4
· 2.50
· 2
· 1802
Key Facts
Key facts for 12234 S Normal Avenue IL
Property Type
House, Cape Cod
Parking
2 garage, 2 parking
MLS #
12490585
Size
1802 sqft
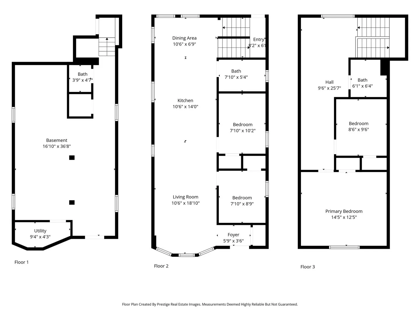
Basement
Finished,Full
Listed on
-
Lot size
-
Tax
$705 /yr
Days on Market
-
Year Built
1915
Maintenance Fee
-
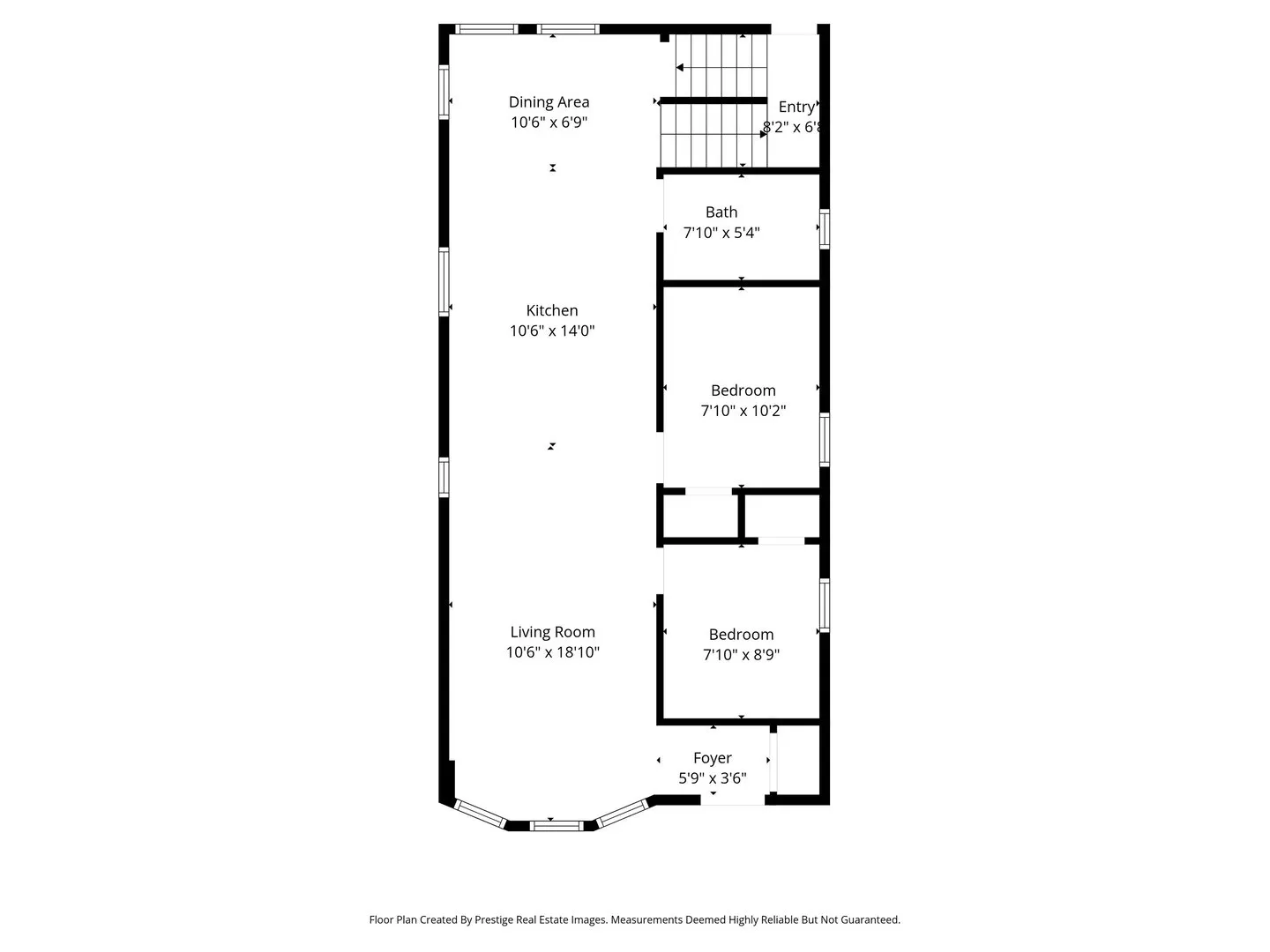
Description
ABSOLUTELY GORGEOUS GIANT SITTING ON AN OVER-SIZED CHICAGO LOT! THIS BEAUTY BOASTS AN OPEN-CONCEPT SPACE WHERE THE LIVING AND DINING AREAS FLOW TOGETHER SEAMLESSLY. THE LIVING ROOM GREETS YOU WITH HARDWOOD FLOORING AND RECESSED LIGHTING, SETTING THE TONE FOR A WARM, INVITING VIBE. THE KITCHEN BRINGS... THE GOODS: STAINLESS STEEL APPLIANCES AND HOOD, 42-INCH WHITE SHAKER CABINETS, QUARTZ COUNTERTOPS WITH BRAKFAST BAR, AND A SUB-TILE BACKSPLASH THAT'S CLEAN, MODERN, AND A COOK'S DELIGHT. 2ND FLOOR FINISHED SPACE IS COZY AND BRINGS IN TONS OF NATURAL LIGHT, AND THE LAYOUT OFFERS PRIVACY WITHOUT FEELING BOXED IN-PERFECT FOR WINDING DOWN OR WAKING UP WITHOUT BUMPING ELBOWS. FULL FINISHED BASEMENT IS SET FOR ENTERTAINING OR GIVING THE EXTENDED FAMILY THEIR OWN SPACE THAT INCLUDES A COZY FAMILY ROOM WITH KITCHENNETE, 1/2 BATH, AND IN-UNIT LAUNDRY CAPABILITY. PRIVATELY FENCED YARD OFFERS BRAND-NEW CONCRETE, A 2-CAR GARAGE, AND A DRIVEWAY PAD FOR EXTRA PARKING-BECAUSE STREET PARKING ROULETTE ISN'T FOR EVERYONE. NEW ROOF, WINDOWS, HVAC, PLUMBING, AND ELECTRICAL, SO YOU CAN SKIP THE STRESS AND FOCUS ON MAKING IT YOURS. LOCATED WITHIN MINUTES FROM THE I-57 EXPRESSWAY, CTA BUS ROUTES, AND LOCAL SHOPS LIKE WALLY'S FOOD MART, A & A SOUTH FOOD MART ARE NEARBY FOR EVERYDAY ESSENTIALS! LARGER RETAIL OPTIONS LIKE PETE'S MARKET AND WALMART JUST A SHORT DRIVE AWAY. CALL TODAY BEOFRE IT'S TOO LATE.
Similar Properties (No results)
Listing courtesy of: Century 21 New Beginnings

Listings courtesy of MRED as distributed by MLS GRID.