41
$559,999 Sale
Listed 15 hours ago
657 N PINE Avenue IL
· 5
· 3.50
· 2
· 3336
Key Facts
Key facts for 657 N PINE Avenue IL
Property Type
House
Parking
2 garage, 2 parking
MLS #
12491599
Size
3336 sqft
Basement
None
Listed on
-
Lot size
-
Tax
$1,194.61 /yr
Days on Market
-
Year Built
2025
Maintenance Fee
-
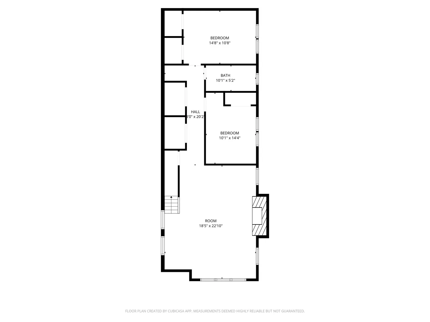
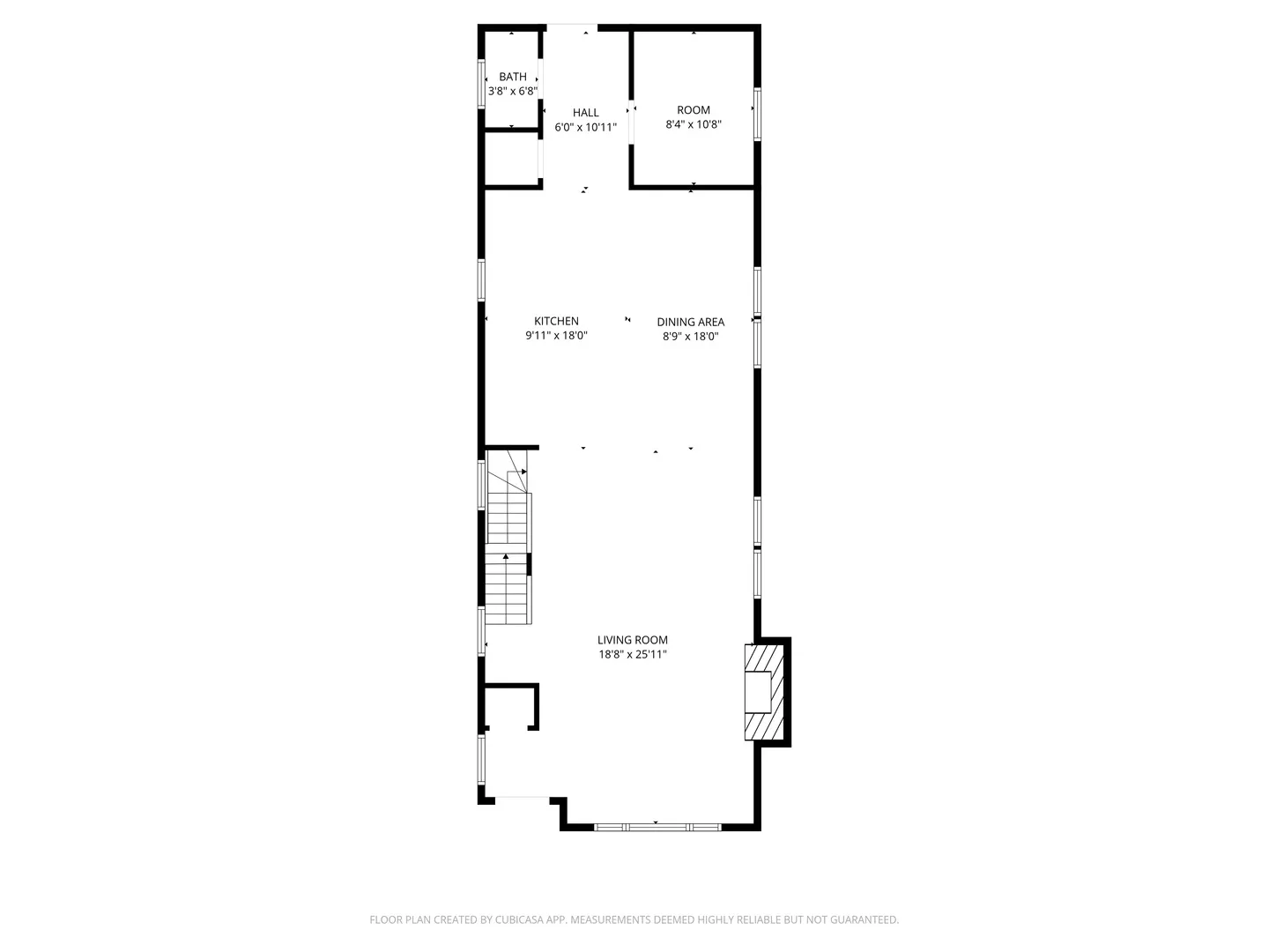
Description
Beautiful New Construction in Austin! This stunning 5-bedroom, 3.5-bathroom home offers modern design and spacious living. The main level features an open-concept floor plan with living room, dining room, and a stylish kitchen with quartz countertops, white cabinets, and black stainless-steel appli...ances. A guest half bath and office complete the main floor. The third level includes three bedrooms, with a luxurious master suite featuring double sinks, soaking tub, and separate shower. The lower floor provides two additional rooms and a large family area. Situated on a 5,961 sq. ft. lot, the home offers a generous backyard and a brand-new 2-car garage. Don't miss this opportunity to own a beautiful new construction in the heart of Austin!
Similar Properties (No results)
Listing courtesy of: eXp Realty

Listings courtesy of MRED as distributed by MLS GRID.