45
$1,599,000 Sale
Listed 1 day
8302 Pleasant View Avenue IL
· 4
· 3.50
· 3
· 4732
Key Facts
Key facts for 8302 Pleasant View Avenue IL
Property Type
House
Parking
3 garage, 3 parking
MLS #
12495559
Size
4732 sqft
Basement
Finished,Bath/Stubbed,Full
Listed on
-
Lot size
-
Tax
$2,450 /yr
Days on Market
-
Year Built
2025
Maintenance Fee
-
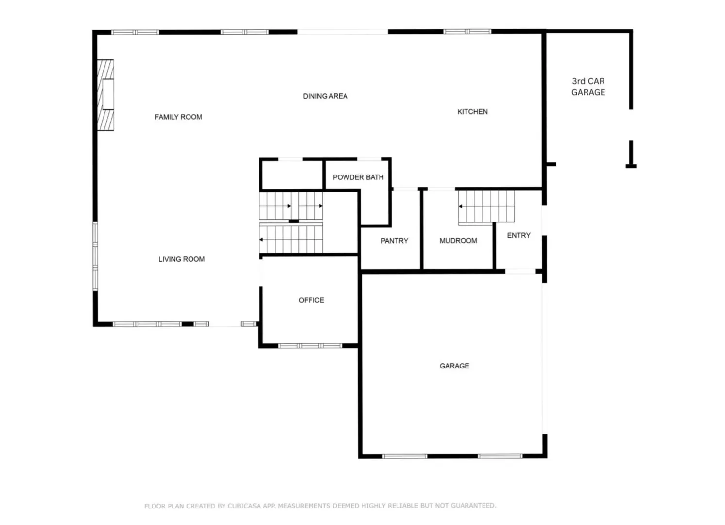
Description
LUXE NEW CONSTRUCTION ZONED FOR LYONS TOWNSHIP HIGH SCHOOL! Stunning, brand new custom-built modern farmhouse, perfectly situated on a spacious 1/3 acre lot in one of the area's most highly sought-after school districts. This 4-bedroom, 3.5-bath home seamlessly blends timeless charm with luxurious m...odern living across two stories plus a fully finished basement. Step inside to find gorgeous 5" solid white oak hardwood floors throughout, complemented by on-trend fixtures and high-end finishes in every room. The thoughtfully designed floorplan is flooded with natural light, offering an ideal layout for both entertaining and everyday living. The heart of the home is the top-of-the-line designer kitchen, complete with premium Wolf and Subzero appliances, rift oak custom cabinetry, premium quartz countertops and designer lighting - a true dream for any home chef. Upstairs, FOUR generous bedrooms and spa-like bathrooms with Hansgrohe Thermostatic showers and fixtures provide a serene retreat with multiple custom walk-in closets, while the finished basement with full bath offers additional space perfect for a 2nd family room, media room, home gym, and/or guest suite. Savor the sunny days and starry nights on the beautifully crafted Timber Tech rear deck with custom railings and bluestone front porch. Enjoy the convenience of a 3-car extra tall attached garage with premium epoxy flooring, ample storage, and a location that can't be beat. This is more than a home - it's a lifestyle. Don't miss your opportunity to own this masterpiece of design and craftsmanship!
Similar Properties (No results)
Listing courtesy of: Compass

Listings courtesy of MRED as distributed by MLS GRID.